
1986年の創業以来、十勝地方の厳しい気候に対応した高断熱・高気密の家づくりを続けてきたソトシロ建設は、ツーバイフォー工法を得意とし、最新の建築技術を採り入れながら、自然素材をふんだんに使った家づくりで人気の工務店です。今回は親御さんの介護にも適した暮らしやすい平屋建ての新居を叶えた清水町のNさんのお宅を訪ねました。
目次
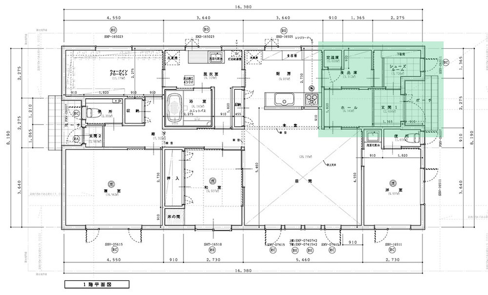
玄関まわりの収納は便利な回遊式

ペールブルーの親子扉が印象的な玄関ドア。「光が入り、明るいので、窓付きの玄関ドアにしてよかったです」と奥さま。玄関横にはシューズルームも設けています。

棚を作った収納力抜群のシューズルームには、ご主人が趣味で楽しまれているゴルフの道具も収まっています。

テラコッタ風のタイルに幅広の天然木フロアが続く明るい玄関ホール。ホールの右手は食品庫、左手はリビングにつながる引き戸になっています。

こちらはシューズルームとホール、キッチンの3方向につながるパントリー(図面では食品庫)。

さらにパントリー(食品庫)内には、定温庫も完備していて、特に室内が温かく保たれる冬季には重宝しそう。味噌や醤油などの発酵食品の保存にも便利です。
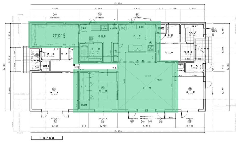
吹上のリビングが中心のおおらかなLDK

木の温もり溢れるリビング・ダイニング。ご夫婦ともにお気に入りなのが羽目板で仕上げた天井です。

屋根形状を活かした梁のないデザインはご主人の希望で、「天井をつくるのはとても大変そうでしたが、梁を無くしたことで高窓から星空を眺めることもでき、正解でした」とご主人。

リビング横には仏間を備えた和室が続いています。来客時にも重宝しそうです。

キッチンは背面収納を薄型タイプにしたおかげで、ゆったりとした空間になりました。奧に見えるのは食品庫につながる引き戸で、食材の出し入れにも便利な動線です。

キッチンはユーティリティーにもつながっています。広々としたユーティリティーは奥さまの希望で、アイロン掛けなどの作業ができる家事カウンターも付けました。奧はウォークインクローゼットに続いていて、乾いた洗濯物をすぐにしまうことも。

ウォークインクローゼットの広さは7畳以上。内部は手持ちのタンスや収納ラックなどが収まり、美しく整頓されています。
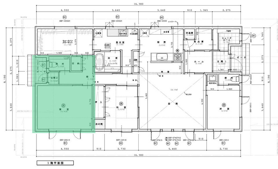
店との行き来に便利な第2玄関

地元で靴の販売店を営んでいるNさん。隣接するお店との行き来に便利な、裏玄関(第2玄関)を設けました。

裏玄関横のトイレ。カラフルな壁紙に飾り棚も造作した遊び心あふれる仕上がりです。

寝室の天井にも羽目板を使っています。廊下を挟んでトイレがあるため、夜間に用を足すのも便利です。
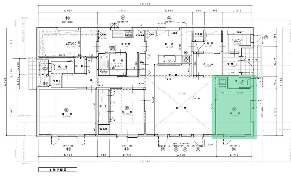
介護に対応した洗面・トイレ付きの洋室

当初は、奧さまのお母さまと同居予定だったNさん。プラン進行中にお母さまが体調を崩され、施設で療養することになったそうですが、泊りに来た時にも使えるようにと、リビング横の洋室には洗面・トイレを希望しました。

奧さま「母もそうですが、子どもや孫たちが泊りに来た時にも、洗面・トイレが付いているのは便利だと喜ばれます」。
Nさんのお宅を一通り拝見してきましたが、ここからはソトシロ建設との家づくりについて、詳しくお話をうかがいます。
建て替えのきっかけは?

奧さま「以前住んでいた家は、築32年くらい。主人の両親と住んでいましたが、二人とも他界しました。私の両親も同じ町に住んでいましたが、父が施設に入ることになり、母を一人にするのが心配で、主人に相談し、2世帯住宅に建て替えて同居することにしました。
当初は2階建てのプランで、お風呂や洗面・トイレもすべて別で、私たち夫婦のスペースは2階にありましたが、途中で母が施設に入ることになり、プランを大幅に変更してもらうことに。2階建てのプランを平屋のプランに直してもらったのですから、とてもご苦労をおかけしました」。
住宅会社選びは?

リビングの一角にはご主人がゴルフコンペで勝ち取ったトロフィーが飾られている
ご主人「外城建設社長の外城晶啓さんとは友人で、DIYをするための材料を分けてもらったり、趣味のゴルフで一緒に回ったりと、良いお付き合いをさせてもらっていて、信頼できる方だと思っていました」。
奧さま「決め手は社長さんの気さくで話しやすく、ずるさや駆け引きのない誠実な人柄ですね。暖かくて空気の良い家に住みたかったので、断熱・気密に優れ、自然素材をふんだんに使う外城さんの家なら、と住宅性能の良さも理由になっています。ちょっとした相談にも対応していただき、アフターフォローの良さにも感謝しています」。
実際の家づくりは?

奧さま「プランは社長の息子さんで常務の征教さんに担当していただきました。回遊できて、直線でつながる家事動線はとても暮らしやすいです。
玄関ホールは車椅子で移動する父が旋回できるよう広さを確保し、玄関スロープも付けてもらいました。お風呂は泊りに来た母と一緒に入れる大きさにするなど、両親を迎えることを前提に図面を引いてもらいました」。
実際に住んでみて感想は?

ご主人「前の家は床暖房で居間だけは暖かったですが、お風呂や洗面室が寒かったし、光も入りにくく、温度・湿気・換気の面でも不満がありましたが、建て替えで全室暖かく、光も入るようになり、室内環境がとても良くなりました」。
奧さま「以前の住まいはにおいが気になりましたが、ソトシロさんの家は室内壁に珪藻土を使っているので、今はそうしたことがなく、空気が良くなったと思います。広くしてもらった洗面所はとても便利で、家事がはかどります」。
ソトシロ建設の事務所を訪れた際に、高天井の美しさ、空気のきれいさが印象に残ったというご夫婦。
詳しい内容はこちらから
住宅性能・プランの両方を満たした新しい住まいは、ご夫婦のセカンドライフをより素敵なものにしているようです。
カメラ Commercial Photo / Movie SWITCH
取材・文 編集部
目次
2020年11月現在の情報です。詳細は各社公式サイト・電話等でご確認ください。