Modelhouse モデルハウス情報

【旭川市豊岡】豊岡モデルハウスⅢ

開催日 開催中
会場 旭川市豊岡1条3丁目
お問い合わせ TEL : 0166-61-0504

心ときめく、
ラグジュアリー空間。


世界水準の住宅性能と、遊び心と上質さが調和する、輸入住宅の住まい。
心ときめくデザインキッチンや、スキップフロアの書斎、秘密基地のようなロフト。
大切な家族のためのワンニャンスペースも見どころです。
詳細情報のご確認や見学のご予約は、こちらの公式サイトよりお願いいたします。

見どころポイント

アン女王時代の様式を踏襲した
見る角度で表情が変わる外観


レンガは言わずと知れた重厚感と耐久性を兼ね備え、「ゼオンサイディング」は30年品質保証、屋根材は輸入住宅の外観を一層引き締める洗練されたデザインと強く美しい「オークリッジプロ」の採用でメンテナンスフリーに。



古き良き時代の
ステンドグラスを今風に


1Fはとにかく優雅にそして豪華な輸入住宅仕上げ。要所で使い勝手やエコに対する思いやりを持った作りです。玄関の手洗いエリアには古き良き時代のステンドグラスを今風に取り入れ、帰宅時のひと手間もおしゃれに演出を。



カジュアル要素もある
様々なルームテーマ


毎日の自分を癒すベッドルームは、ゆったり広めのワンランクアップ空間。自分の「好き」を追求した趣味部屋には、秘密基地サイズのロフトで遊び心満載。2Fの各所に、輸入住宅に調和する+αの仕掛けを導入しました。

建物概要


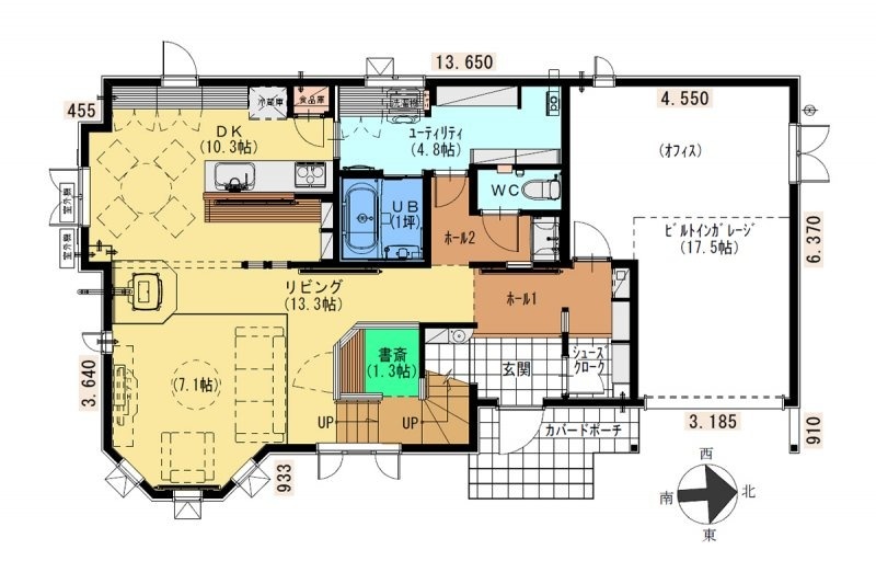
1階平面図


2階平面図



敷地面積 268.30m²(81.1坪)
延床面積 159.07m²(48.1坪)
1階床面積 102.72m²(31.1坪)
2階床面積 56.35m²(17.0坪)

アクセス

豊岡モデルハウスⅢ
所在地:旭川市豊岡1条3丁目

2026年02月現在の情報です。詳細は各社公式サイト・電話等でご確認ください。

株式会社小森工務店 セルコホーム旭川

自社大工による2×6工法 カナダ輸入住宅の風格あるデザイン 

1973年創業、旭川の地場大手工務店「小森工務店 セルコホーム旭川」は、2×6工法、自社大工、自社プレカット工場により施工体制を強化。施工精度や断熱気密性能の向上に取り組んできた。デザイン面では、カナダ輸入住宅「セルコホーム」とパートナーシップを結び、旭川や道北で年間約30棟の輸入住宅を建設。耐久性の高い屋根や外壁、飽きのこない風格のある住宅デザインにも定評がある。

営業担当のきめ細かい対応

また営業担当が打合せから完成お引き渡しに至るまで担当。間取りや外観デザイン、照明やクロス、洗面化粧台やキッチン、ウッドデッキ、薪ストーブをはじめ、顧客の住まいづくりに対するさまざまな要望に丁寧に応えることで顧客満足度の高い注文住宅を実現、毎年、住宅受注の3割近くがOB客からの紹介で安定経営を続けている。

自社プレカット工場で生産性と性能を強化

水平荷重や垂直荷重を床や壁などの面で負担する枠組み壁工法(ツーバイフォー工法)を採用し、地震や台風による衝撃に強い住まいづくりを推進。カナダ産木材を使用した2×6住宅を適正価格でご提供する為に、小森工務店では自社工場でプレカット加工を行い、自社大工の技術向上にも取り組んでいる。