Story 取材記事

余白と温かみのあるジャパンディ空間を、設計力で叶えた30坪の家 恵庭市


恵庭市に事務所を構えるキクザワは、1978年創業の工務店。お客さまと直接打ち合わせを行うスタッフ全員が一級または二級建築士の国家資格を持ち、初回打合せから設計・施工管理・アフターメンテナンスを一貫して担当する専門集団として、性能・デザイン・安心という住まいの三本柱を大切にした家づくりに取り組んでいます。

今回ご紹介するのは、恵庭市の住宅地に完成したキクザワのモデルハウス2025「奏−KANADE−」。モデルハウスの設計を手掛けた、25歳の若き二級建築士・白幡結衣さんにお話を伺います。


北欧視察を終えた代表取締役社長の菊澤章太郎さんとともにモデルハウスを設計した白幡さん


白幡さん 「奏−KANADE−」は、菊澤章太郎社長が設計した1階の間取りを踏まえ、LDKのある2階の設計を担当しました。意識したのは、ジャパンディテイストです。
ジャパンディとは「Japanese(日本の)」と「Scandinavian(北欧の)」を組み合わせた造語で、今注目されているミックス・テイストのこと。
ここにアースカラーやレトロな雰囲気を加えて『懐かしさとぬくもり』を感じる空間を目指しました。

玄関の先に広がるのは、外と中を繋ぐ縁側のようなスペース

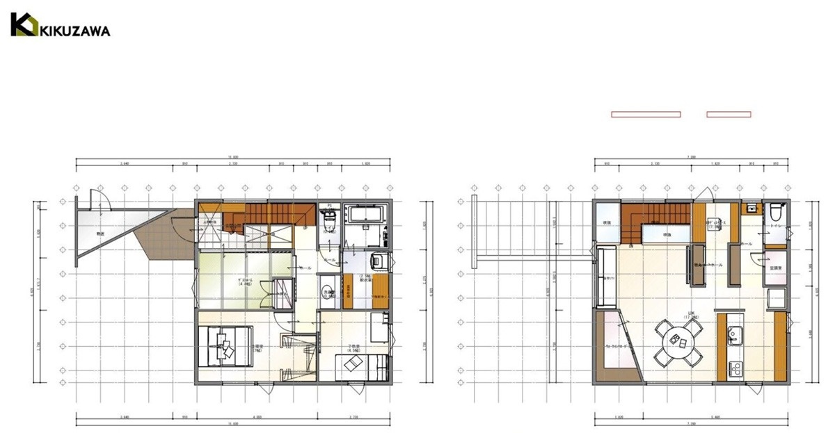
キクザワモデルハウス2025「奏−KANADE−」は、42坪の敷地に延床約30坪+物置1坪を収めたコンパクトな住宅です。さらにキクザワ初の試みとして、2名体制で設計されています。

モデルハウスの中は、外観からは想像のつかない圧巻の空間が広がっていました。



札幌軟石のタイルや割栗石が敷かれた外構には、春になると植栽のイロハモミジやアオダモの葉が芽吹き、秋には紅葉を楽しめます。



玄関アプローチに沿った形で物置とプロパンガスのボンベ室が設計されており、道南杉の外壁が意匠性を高めています。



玄関から和の演出が光る1階



玄関ホールには、吹き抜けの土間と4.4帖の小上がりになった和室を設けています。空間にモダンな表情を添えているのは、畳職人の手による斜めに切り込んだ変形畳です。



和室には造作障子を設え、客間としても使えるようにしています。土間の壁際には外構と同じ割栗石をあしらい、家の内と外を緩やかにつないでいます。



小上がりは、縁側に腰掛けるような感覚で、来客時のちょっとしたおしゃべりの場としても活躍しそうです。和室の窓は下開きタイプで、網戸付き。風を取り込みながら、心地よく過ごせる工夫がされています。



玄関から続く土間は、屋内と屋外をゆるやかにつなぐ準屋外のような空間。
雪国の住まいでも植物を楽しめる場所として計画されました。
子どもが友達を連れてきたときには、隣のゲストルームと一体的に使える遊び場にも。
吹き抜けを通して2階ともつながり、家族の気配を感じながら程よい距離感で過ごせます。
たっぷり入るシューズクローゼットを設け、収納面にも配慮されています。

暮らしやすい動線が続く水回りと個室



1階は廊下にフルオーダーの造作洗面台を設けており、突き当たりに主寝室と子ども部屋が配置されています。洗面化粧台の背面に脱衣室やバスルームなどの水回りをまとめています。



北海道産シラカバのフローリングがやさしい表情を見せる5.5帖の主寝室。
ニッチを取り入れたホテルライクなデザインが落ち着いた雰囲気をつくり出しています。
さらに、空間効率を考えた大容量のウォークインクローゼットも設けました。



子ども部屋は4.5帖。二段ベッドを置くなど可変性を持たせ、クローゼットは設置しなかったそう。
子ども部屋は使用期間が限られることも多い空間。二段ベッドや共用スタディースペースなど、使い方を工夫することで、コンパクトでも実用的に使える計画としています。

2階LDKは木の温もりと余白が織りなすジャパンディな空間

和の演出にすっかり魅せられた玄関。吹き抜け階段を上った先にLDKが広がっています。



階段壁の一面には、調湿や脱臭機能を持つ壁タイル材「エコカラット」を採用。石目調のデザインが玄関正面のアクセントにもなっています。



階段を上った先に広がるLDK。吹き抜けからワークスペース、リビング、ダイニング、キッチンと緩やかにつながります。LDKは約17帖とコンパクトですが、それ以上の広さを感じられる明るく開放感のある空間です。



造作ソファとルーバーがアクセントとなるリビング。
天井面のダウンライトは極力抑え、ペンダントライトやブラケットライトを中心に照明を計画。
光の位置を低くすることで空間の重心を下げ、落ち着いた雰囲気を生み出しています。



限られたスペースを生かすために、ソファは壁付けし、下部は引き出し収納になっています。やや硬めの座面のおかげで沈み込みすぎず、座り心地も抜群です。



2階からは吹き抜け玄関を見下ろすことができ、来客や階下にいる家族の気配が感じられる間取りになっています。



通常より30cm高い天井やオーク材の無垢フローリング、左官職人の手仕事が感じられる表情豊かな塗り壁。さらに限られたスペースを生かした空間デザインが、ヨーロッパの都市部にあるアパートメントを思わせます。



ダイニングの横には、パントリーとしても使える扉付きの収納スペースがあります。ダイニングスペースをより広く確保するため、斜めに壁付けされており、内部は台形型になっています。



大画面のテレビ壁の裏側には収納を設け、その先にスタディースペースや書斎として使える、吹き抜けに面したデスクコーナーがあります。



カウンター背面は菊澤社長によるデザイン。ライト/月、ダークブルーのクロス/夜空、飾り棚/雲をイメージしています。まるで、現代的な床の間のような設えです。

LDKの中心は、美しくて心地よい“魅せる”キッチン

数ある見どころの中でも、ひときわ目を引くのがキッチンの美しさです。



キッチンは、タモ材の造作カウンターによる統一感やヘムロックの木目の天井が美しく、造作食器棚などの機能性を備え、飾り棚もポイントになっています。



3色のカラーでコーディネートした通し目地のタイルが、アクセントとして効果的に使われています。



ダイニング・キッチンはリビングよりも天井を低く抑え、居心地のよさをアップ。間接照明が夜の落ち着いた雰囲気を演出し、地窓から日中の明るさが取り込めます。




キッチンの横には、パントリーとしても使いやすい収納スペースと洗面台、トイレを一直線に配置しました。信楽焼の洗面ボウルやオレンジ色のタイル、波形の鏡など、アイテムの組み合わせに遊び心が感じられます。



菊澤社長 見どころの多い住まいですが、まずは30坪というサイズ感を実際に体感していただけたらと思います。

家づくりの打ち合わせでは、「狭かったら困るから広くする」「収納が足りなかったら困るから増やす」というお話をよく耳にします。けれど実際に暮らしてみると、「広すぎた」「収納はこんなに必要なかった」と感じることも少なくありません。

また、2階リビングに興味を持ちながらも、実際に体感できる場がなく、安心感から1階LDKを選ばれるケースも多く見られます。

このモデルハウスは、そんな“必要十分な広さ”を体感していただくために計画しました。住まいをむやみに大きくするのではなく、本当に大切にしたい部分にコストをかける。その判断のヒントとなる場所になれば嬉しく思います。

キクザワらしい注文住宅の自由さと、ものづくりの楽しさを感じられる住まいです。

【記者の目】



建築資材や土地価格の高騰、住宅ローンなどが大きく変化している時代です。キクザワのモデルハウスは、トレンドを盛り込みつつも普遍的で美しいデザインにまとめられ、見応えたっぷり。ぜひ、実際に足を運んで、30坪の上質な空間を体験してください。

奏−KANADE−モデルハウス2025【完全予約制】



住所 恵庭市和光町4丁目6番1-2
電話 0123-32-2440
受付時間 9時~18時

予約フォームはこちら
https://www.kikuzawa.co.jp/inquiry/

【住宅概要】



敷地面積 139.57㎡(約42坪)
延床面積 104.91㎡(約31坪※物置1坪)
断熱性能 UA値=0.17W/㎡K
気密性能 0.29㎠/㎡
太陽光発電 パネル8.1kW パワーコンディショナー4.95kW 蓄電池7.1 kWh
換気 Panasonic社製 第一種換気システム
給湯暖房 オリジナル全館空調システム(三菱エアコン14畳用)
キッチン クリナップ CENTRO
ユニットバス クリナップ ラクヴィア
洗面化粧台 造作洗面化粧台
食器棚 造作食器棚
床材 1階:北海道産シラカバフローリング、2階:オーク無垢フローリング
壁材 塗り壁(ケンコート)仕上げ、一部クロス、1階個室:自然粘土塗料(レームファルベ)



2026年03月現在の情報です。詳細は各社公式サイト・電話等でご確認ください。

株式会社キクザワ

株式会社キクザワ

住宅性能と丁寧な家づくりでOB顧客との深い信頼関係

恵庭市を中心に札幌、北広島、江別など札幌圏で安定した受注を得ている工務店、株式会社キクザワの菊澤里志社長は、道内の有力工務店グループアース21の会長を務めるなど名実ともに北海道の住宅業界を牽引している一人。

1978年の創業以来、質の高い住宅づくりのために大工を常勤雇用。アフターメンテナンスも含め施主との信頼関係を高めており、新築住宅の施主の95%がリフォームや営繕などの工事をキクザワに発注する。また、住宅受注の約6割は顧客などからの紹介で確保、安定経営の源となっている。ZEH住宅など住宅性能と創エネの取組や、無垢材による造作家具、自然素材を活用した家づくりも人気の要因。